オープンハウス情報
【マンション】ソフィア枚方公園サニーヴェルデ
2010年5月21日 カテゴリ:オープンハウス情報
![]() |
※成約しました 多くのご来場誠に有難うございました | |
| 開催場所 | **** | |
|---|---|---|
| 所在地 | 枚方市走谷1丁目139番1 | |
| 交通 | 京阪本線「枚方公園」・「光善寺」駅 徒歩12分 | |
| 価格 | 成約御礼 | |
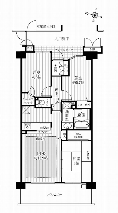
| 間取り | 3LDK | 専有面積 | 68.22平米 |
|---|---|---|---|
| 所在階/階数 | **階/6階 | 建物構造 | 鉄筋コンクリート造 |
| 築年月 | 平成14年2月 | バルコニー面積 | 11.78平米 |
| バルコニー方向 | 西 | 総戸数 | 82戸 |
| 管理形態 | 委託管理 | 駐車場 | 空有(3,000円から5,500円) |
| 管理費 | 10,300円/月 | 修繕積立金 | 6,820円/月 |
| 引渡 | 即時 | 現況 | 空家 |
| 小学校区 | さだ東小学校 | 中学校区 | さだ中学校 |
| 管理会社 | 双日総合管理株式会社 | 施工会社 | 株式会社長谷工コーポレーション |
| 事業主 | 日商岩井株式会社 | 折込チラシ | **** |
| セールスポイント | 平成22年4月ハウスクリーニング済み!※室内大変綺麗にお使いです 充実した設備!(床暖房・追い焚き機能付きシステムバス・浴室暖房乾燥機etc) バルコニー目の前は公園につきとても明るく大変風通しの良いお部屋です! |
||
| 備考 | 中2階住戸 敷地内駐車場より一番近い住戸です(荷物の多い日や雨の日などとても便利です) 市立走谷保育所徒歩1分 ペットと暮らせるマンション(別途飼育細則有) トランクルーム・スロップシンク有 住宅性能評価書付き(設計・建設) 京阪枚方公園・光善寺駅までともにフラットアクセス 空室につき即入居可能 |
||
| 物件担当者より | 当日はお部屋を開放いたしておりますので、ご自由にご覧いただけます。 ぜひ実際のお部屋をゆっくりじっくりとご覧ください。 なお、当日ご都合の悪い方はお電話いただければ後日ご案内いたします。 |
||

お問い合わせ
物件についてのご質問、ご相談などお寄せください。
どうぞお気軽にお問い合わせください。 専門スタッフが親身になってお応えいたします。
私たち社員一同、皆さまからのご連絡をお待ちしています。
お電話でのお問い合わせ

メールフォームでのお問い合わせ
※ 【必須】は必須項目です





